12Sprzedam udział 5/12 w działce z domem o wymiarach działki 30x52 m. Oferta dotyczy udziału o powierzchni 660m2. Teren ...

DZIAŁKI W BLISKIEJ OKOLICY STARGARDU Sprzedam pięknie położone działki pod zabudowę mieszkaniową jednorodzinną z ...

SPRZEDAM DZIAŁKI ROLNE WOJ. OPOLSKIE (REJONY W OKOLICACH NYSY , GŁUCHOŁAZ) 43,76ha. Kontakt tylko telefoniczny

Kupno ów dzaiałki. budowlano-rolnej o nr ewid. 308 obręb 0015-ZIELLONKI. Oferta osoby prywatnej, spół-Właściciela ...

Można podzielić na dwie po 13 ar, a nawet na trzy po 8.5 ara, tak powiedział geodeta w Gminie Zielonk, acz to ...

Dzwonić po godz. 15 a nie wcześniej !! 7ar =27.700zł. ...
Ogłoszenia z okolicy
2Na sprzedaż działka rolna o powierzchni 5800 m², położona w malowniczej miejscowości Garlica Murowana w gminie ...
Oferta na wyłączność. Na sprzedaż działka znajdująca się w miejscowości Garlica Murowana, w gminie Zielonki, z ...
15Cena = 2. 002.000zł. za całą działkę 53 ary, acz to jest realna cena !! Przeliczając =39.200zł./za 1 ara, jak kto ...
13sprzeadaż, jako wpół-Własciciel ! Nie ...
4Sprzedam atrakcyjną działkę położoną w Zielonkach o powierzchni 23ary (wym. ok.9m x 264m). Działka zlokalizowana w I ...
10Działka rolna w miejscowości Giebułtów ( gmina Wielka Wieś) 21 arów. Nad rzeką, z dostępem do drogi publicznej. ...
7Mam przyjemność zaprezentować działkę budowlaną zlokalizowaną w Modlniczce przy ulicy Willowej o powierzchni 1 208 ...
6Na sprzedaż działka usługowa 27 ar – Modlniczka | tuż przy obwodnicy Krakowa Lokalizacja: Modlniczka, gm. Wielka ...
BIBICE - Nieruchomość inwestycyjna z ogromnym potencjałem! Doskonała lokalizacja bezpośrednio przy trasie S7 Na ...
9Działka 27,72a na sprzedaż - Brzozówka, ul. Krakowska | gmina Zielonki Na sprzedaż widokowa działka o powierzchni ...
5Szeroka ,płaska widoczna z głównej ulicy , działka o powierzchnio ponad 2ha . Możliwa zabudowa: -wolnostojąca , ...
30PRAWIE HEKTAR , W OBECNYM PLANIE ZAGOSPODAROWANIA ROLNA . Działka prostokątna lekko nachylona.Dojazd drogą gminną ...
515 AROWA , POD ZABUDOWĘ WOLNOSTOJĄCĄ LUB BLIŹNIACZĄ z możliwością usług Działka płaska , szeroka , cicha, objęta ...
2PÓŁ HEKTARA , W OBECNYM PLANIE ZAGOSPODAROWANIA ROLNA .MODLNICA . Jest dostęp do drogi publicznej oraz mediów. W ...
530 arowa , płaska w obecnym planie zagospodarowania rolna z możliwością zabudowy budynkami rolniczymi , szklarniami oraz ...
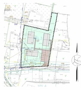
16|R| Property prezentuje unikalną inwestycję w malowniczej okolicy Małopolski, która oferuje niepowtarzalną szansę na ...

|R| Property przedstawia Państwu działkę na sprzedaż znajdującą się w Opatkowicach. Lokalizacja: Nieruchomość ta ...
8|R| Property przedstawia Państwu działkę na sprzedaż znajdującą się na Woli Justowskiej przy ulicy Zakamycze w ...
4|R| Property przedstawia Państwu działkę na sprzedaż znajdującą się na ulicy Trębacza w Krakowie. Lokalizacja: ...
7Tylko u nas! ENGLISH VERION BELOW |R| Property przedstawia Państwu działkę inwestycyjną na sprzedaż znajdującą ...
3|R| Property przedstawia Państwu działkę na sprzedaż znajdującą się na Dębnikach przy ulicy ...
7|R| Property przedstawia Państwu działkę na sprzedaż znajdującą się na Bielanach przy ulicy Sokole. Ta malownicza ...
3|R| Property prezentuje działkę budowlano - usługowa zlokalizowaną w Przylaski Rusieckim w ...

Dzialki inwestycyjne Farmy na sprzedaz lub wspolna inwestycja. Czynne pracujace farmy fotowoltaiczne, rozne ...

DZIALKI inwestycyjne na rozne cele w miastach TOP 7 NA SPRZEDAZ DZIALKI budowlane na rozne inwestycje w duzych ...

Sprzedam grunty pod budownictwo wielorodzinne, jednorodzinne oraz pod obiekty: hotelowe, akademickie, domy seniora, ...
10Tylko u nas! |R| Property prezentuje na sprzedaż działkę budowlaną o powierzchni prawie 15 arów w Olszanicy przy ul. ...
6Tylko u nas! |R| Property prezentuje na sprzedaż działkę budowlaną o powierzchni 2164 m2 w Olszanicy przy ul. Zofii ...
9|R| Property przedstawia Państwu działkę na sprzedaż znajdującą się w Zabierzowie przy ulicy ...
12Tylko u nas |R| Property prezentuję na sprzedaż wyjątkową działkę o powierzchni 2370 m² z bezpośrednim dostępem ...





































